Residential
S Prince St. Residential Remodel:
Lancaster, PA
​
Four bedroom, two and a half bathroom, residential remodel.
4th Street Residential Remodel:
Lansdale, PA
​
Four bedroom, two and a half bathroom, residential remodel.
Dickinson Street Residential Remodel:
Philadelphia, PA
​
Four bedroom, two and a half bathroom, residential remodel.
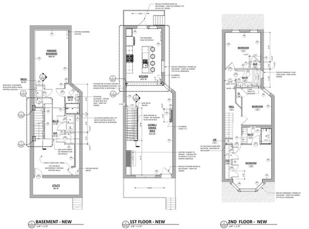
Lawrence Street Residential Remodel:
Philadelphia, PA
​
Three bedroom, one and a half bathroom, residential remodel.
Albert Street Residential Remodel:
Philadelphia, PA
​
Two bedroom, one and a half bathrooms, residential remodel.
Cedar Ave Residential Remodel:
Philadelphia, PA
​
Three bedrooms, three bathroom, residential remodel.
Magnolia St Residential Remodel:
Philadelphia, PA
​
Two bedrooms, one bathroom, residential remodel.
Woodward St Residential Remodel & Addition:
Lancaster, PA
​
Four bedrooms, two and a half bathrooms, residential remodel and rear two story addition.
S Christian St Residential Remodel:
Lancaster, PA
​
Three bedrooms, one and a half bathroom, fire restoration remodel.
Harold St Residential Remodel:
Philadelphia, PA
​
Two bedrooms, one and a half bathrooms, residential remodel.
Ash Street - New Construction:
Coatesville, PA
​
Four bedrooms, three bathrooms, new construction build.
Thomas Residence:
Richmond, Virginia
​
Existing conditions to provide to builder prior to new addition to home.






















































